by
胜万铭
根据您提供的实用新型专利文档(CN 213636160 U),我将对“一种电池钣金外壳防水结构”进行详细解析。该专利旨在解决现有电池钣金外壳防水性能不足的问题,通过改进结构设计实现高效密封。以下解析基于文档内容,包括结构组成、工作原理和关键特征,并嵌入相关图片以增强理解。
现有电池钣金外壳通常采用上盖和下盖简单扣合结构,存在装配间隙大、易渗水等缺陷。本专利通过引入胶槽支架和密封圈等组件,消除间隙,提升防水效果。专利于2021年7月6日授权,由江西迪比科股份有限公司发明。
该防水结构主要由底壳、上壳、胶槽支架、密封圈等部分组成。下面结合文档图示逐一解析。
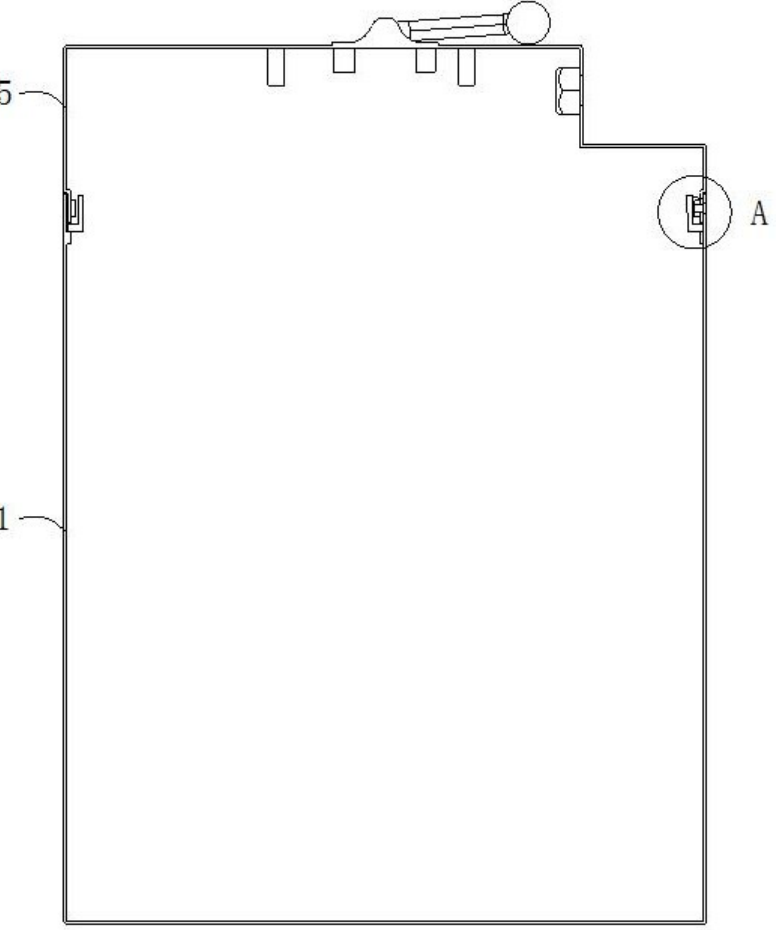
底壳(1):作为外壳基础,内壁上设有支撑台阶(2)。支撑台阶由1.5mm厚钣金焊接而成,用于承托胶槽支架。
支撑台阶的作用:提供安装基准,确保胶槽支架稳定定位。
胶槽支架(3)是专利的关键创新点,作为独立件方便安装。它包括:
环形支撑凸缘(31):底部凸缘,直接搁置在支撑台阶上。
支撑边框(32):与环形支撑凸缘一体成型,内侧带有加强筋(33)以增强结构强度。
胶槽形成:支撑边框与底壳内壁之间形成环形胶槽,用于容纳密封圈。

密封圈(4):安装在胶槽内,采用弹性材料,受压后填充间隙。
上壳(5):扣合在底壳顶部,底部带有环形压紧板(51),与上壳一体成型。上壳与底壳扣合后,环形压紧板伸入胶槽压紧密封圈,实现密封。
固定方式:环形压紧板和底壳周面设有定位孔(6),通过螺栓(7)锁紧固定。

组装时,胶槽支架先安装在支撑台阶上,然后放入密封圈,最后上壳扣合压紧。文档中的截面图清晰展示了各组件关系。

防水核心在于“压紧密封”:上壳扣合后,环形压紧板深入胶槽,压缩密封圈,使其变形填充底壳与上壳之间的所有间隙。这消除了传统结构的缝隙,防止水分渗透。同时,胶槽支架作为独立件,简化了组装流程,提升效率。
透气阀(52):上壳设有透气阀,连接处安装O型密封圈(53),用于散热和平衡内外压差,避免水汽凝结。
密封测试孔位(54):便于安装堵头(55)后进行密封性检测,确保质量。
连接器(8):外置连接器采用硅胶垫和螺丝固定,用于充电/放电接口,增强实用性。
优点总结:结构简单、组装便捷、密封可靠,同时兼顾透气散热,适用于户外电池应用。
本专利通过胶槽支架和密封圈的创新设计,有效提升了电池钣金外壳的防水性能。结构合理,易于工业化生产。如果您需要进一步细节(如材料规格或测试数据),建议参考专利全文。